間取り
3LDK+店舗
1階 平面図
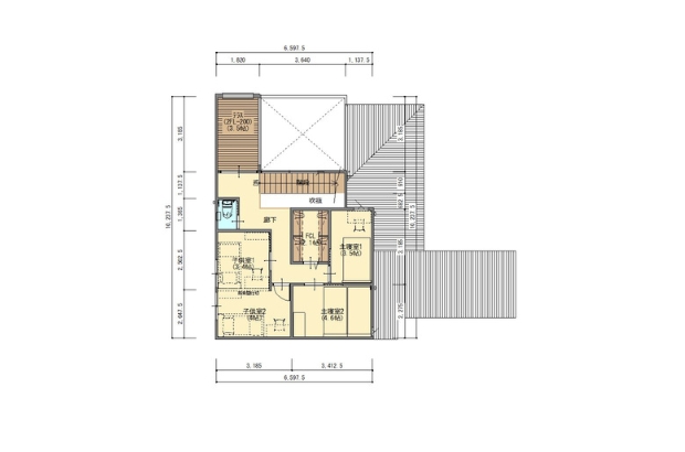
2階 平面図
ギャラリー
外観
四角が重なりあったような外観。正面に見える木目調の外壁と植栽の緑の相性がいい。夜は木々の影が揺れ、室内の照明があたたかな雰囲気を醸し出す。店舗併用のため、お客様が来た際に迷わず店舗へ行けるように店舗の入り口を配置した。
玄関
玄関には壁いっぱいの鏡を採用。中庭が映り、奥行き感が生まれることで小さな空間でも圧迫感を軽減できる。
LDK
階段の吹抜けを利用し、上部まで大きなサッシが連なる。陽射しを室内に取り込みながら中庭ともつながることで縦にも横にも視線が抜け、床面積以上の開放感を味わえる。2階の格子は愛猫の頭が入らない幅をとっている。
LDK
中庭は道路に面しているため、プライバシー性を高めるために衝立壁を作った。おかげで車の走行音も緩和されている。美しい山の緑も見える立地を生かし、衝立壁の高さを考え室内からも自然を眺められる。
洗面スペース
洗面スペースは店舗と共有のスペースとした。洗面の下部のアールのついた扉の中には愛猫のトイレを入れすっきりと収めた。
店舗部分
女性専用のサロンということもあり、居住空間とは違いナチュラルで落ち着いた雰囲気にまとめた。
中庭
中庭は上でも下でも堪能できる。デッキ部分には軒が掛かっているので、雨の日でも気にせず過ごすことが出来る。照明は間接照明を採用し、ふわぁっと優しく光が広がる。植栽を上から照らし影が壁へ映る美しさを室内でも愉しめる。
物件情報
施工価格
4,000万円~4,500万円
構造
2階建て・店舗併用住宅
間取り
3LDK+店舗
延床面積
110.20
敷地面積
201.85
工法
木造軸組