間取り
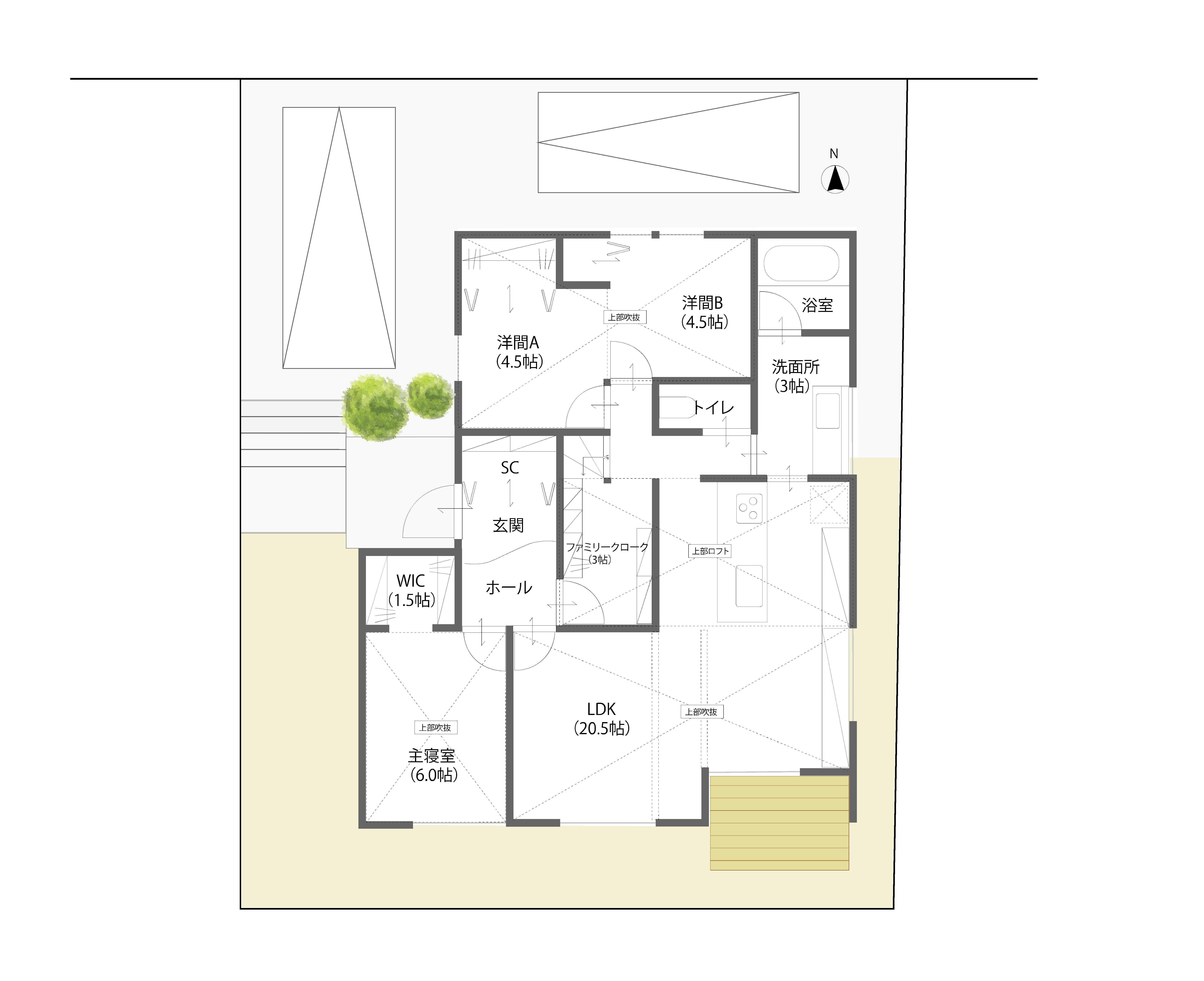
3LDK+ファミリークローク(平屋)
3LDK+ファミリークローク(平屋)
玄関から繋がる主寝室とLDK。生活リズムの違う家族が住むのに配慮された間取り。さらに玄関⇀LDKからの回遊導線と玄関⇀ファミリークロークコーナーからの2WAY導線で、お客様と家族の導線を別けることが可能。 洋間A・Bは9帖。平屋特有の勾配天井を活かした設計により、帖数以上の広がりを感じる開放的な空間を実現しました。 4.5帖ずつに仕切れるため、お子様の成長に合わせてフレキシブルな間取りが可能です。
ギャラリー
外観には高級感のある塗り壁を採用
3WAY動線の玄関
天井部は格子のデザイン、格子と造作扉が視線に奥行を生み、抜け感を演出。 1)玄関⇀寝室 2)玄関⇀リビング⇀キッチン 3)玄関⇀ファミリークローク⇀キッチンと3WAY導線のある玄関。
20帖の広々LDK
柱や梁を見せる真壁工法で無垢材(音響熟成木材)の温もりをより一層感じられます。
キッチンと横並びのダイニング
勾配天井には無垢の杉板張りを採用することで木の香りがより一層感じられます。 その他天井部位には幻の漆喰で仕上げてあり、エアリード仕様となっています
造作カップボードと棚のあるキッチン
「空気がうまい家」に仕上げるために、キッチンには接着剤を使用しないホーローキッチンを採用。 奥は洗面コーナーが続いています。
洗面はアイカ仕様
洗面はアイカの造作洗面となっており、カウンターや棚にも杉無垢材(音響熟成木材)を使用しています。 3帖のスペースのため、ランドリールームも兼ねており、混雑する朝の時間も広々使用できます。 洗面の隣はキッチン、リビングへと繋がります。
回遊でつながるファミリークローク
ロフトにつながる階段下を利用した3帖のファミリークローク。 空間をうまく利用した収納コーナーとなっており、冬などは帰宅後玄関からファミリークロークでコートをかけ、そのまま洗面で手洗いできるので、帰宅後の手洗い習慣づけにもよい動線。
ロフト空間
階段を上がると広がるロフト空間。お子様の遊び場として、収納として、マルチに使えます。
フレキシブルな子供部屋
平屋特有の勾配天井を活かした設計により、帖数以上の広がりを感じる開放的な空間を実現しました。 10帖の子供部屋は4.5帖ずつに仕切れるため、お子様の成長に合わせてフレキシブルな間取りが可能です。
建具も全て無垢杉で統一することで、木の香りが清々しく深呼吸したくなる、まさに「空気がうまい家」です
物件情報
施工価格
3,480万円~4,150万円
構造
平屋
間取り
3LDK+ファミリークローク(平屋)
延床面積
87.68㎡(26.52坪)
敷地面積
185.15㎡(56.00坪)
坪単価
52万円~56万円
工法
木造軸組