木暮らし工房サンハウス

【フルリノベ済】山口県光市大字岩田

販売中
即引渡し可
1/8

5LDK+大型ウォークスルーパントリー付きのリノベーション済中古住宅。
JR山陽本線岩田駅徒歩10分の閑静な住宅街に立地。駐車場3台可能(車種による)。
ウォルナット調のシックな室内と、一枚板を使った玄関式台やキッチンカウンターが魅力です。
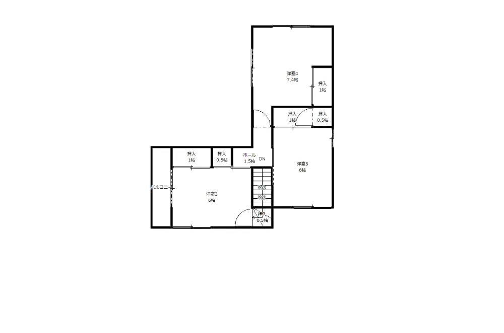
1階に2部屋・2階に3部屋で、5〜6人家族にも対応可能。
収納充実&設備交換済で、すぐに新生活をスタートできます。

物件情報

情報更新日

2026/05/28

販売価格

1198万円

間取り

5SLDK

土地面積

188.61 m² [57.05坪]

建物面積

119.91 m² [36.27坪]

構造

2階建て

住所

山口県光市岩田岩田

土地の権利形態

完成時期

間取り

5SLDK
間取り図 1階
間取り図 1階

間取り図 2階
間取り図 2階

物件情報

所在地

山口県光市岩田岩田

交通

JR山陽本線 / 岩田駅 徒歩10分

土地面積

188.61 m² [57.05坪]

建物面積

119.91 m² [36.27坪]

建ぺい率・容積率

60%、200%

間取り

5SLDK

建物構造

駐車場

道路付け

北 4.0m 公道 接面14.0m・南 2.4m 公道 接面14.5m

私道負担・道路

なし

負担金

電気

中国電力

上水道

公営水道

下水道

公共下水

ガス

プロパンガス

都市計画

開発面積

地目

宅地

土地の権利

借地権の種類・期間

取引条件の有効期限

建築確認番号

制限事項

特記事項

販売価格

1198万円

販売区画・戸数

総区画・戸数

造成完了時期

完成時期

引き渡し時期

売主

取引形態

売買

学区情報

備考

情報更新日

2026/05/28

次回更新予定日

2026/06/11

販売会社情報

社名

木暮らし工房サンハウス

ブランド名

木暮らし工房サンハウス

所在地

広島県広島市西区己斐本町二丁目18-7

営業時間

9:00~18:00

定休日

水・木曜日

電話番号

082-924-3338

FAX

建築許可番号

広島県知事許可(特ー6)第37852号

宅建業免許番号

広島県知事(2)第10679号

所属団体名及び公正取引協議会加盟事業者

日本伝統建築保存協会 準会員
広島商工会議所
広島西法人会
GoodLiving友の会

閲覧履歴

arrow